Interior 326

客廳以鍍鈦金屬、鋼烤等做出天花板的反射效果,讓體感更為寬敞;地坪的銅條分割旨在表現線條細膩度。

玻璃夾紗製成的拉門,隱約穿透廚房及後院,不僅是空間區隔的媒介,也兼具視覺延伸和借景之功能。

1樓客廁。設計師將空間外推,並以玻璃牆面和採光罩強化亮度。

10mm強化灰玻簡化了剪刀梯的線條,輔佐上因機能所需之側面人造光源,虛實交疊,豐富了空間變化。

2樓小起居室與臥室之間使用夾紗玻璃拉門,讓空間更具彈性,布料家具增添溫暖感受。

3樓次主臥具書桌、更衣室及全套衛浴等完整機能。

4樓臥房以居住者的生活模式進行配置,簡化材料與造型,帶來寧靜愜意的氣息。

利用寬敞的走道和樓梯下方打造臥榻區,以期創造出房間以外的停留角落。

連接4樓至5樓的階梯,其雕塑感成為視覺焦點,並將踏階高度延伸出的平台作為臥榻使用,發揮空間坪效。

樓梯扶手採用金屬圓管鍍鈦,提點出律動性;面材則為刷石子。

5樓作為學習空間,設置長桌讓孩童們可一同學習。

位於地下室的視聽室採光較為薄弱,夾紗玻璃、人造竹及人造光源的運用希冀注入輕盈感受。

地下1樓平面圖。

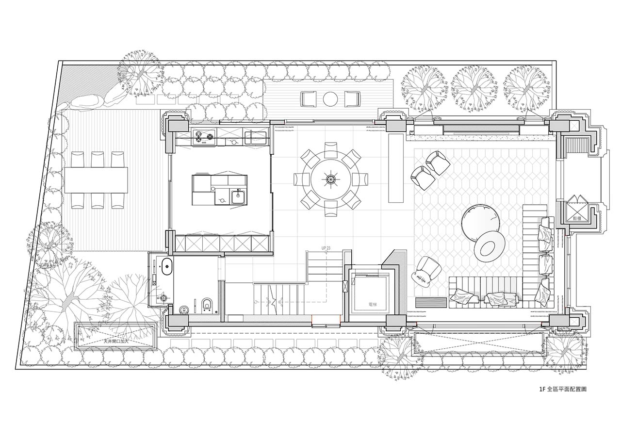
1樓平面圖。

2樓平面圖。

3樓平面圖。

4樓平面圖。

5樓平面圖。
本案為小型社區電梯別墅,位於交通方便卻鬧中取靜的巷弄內,繁華又幽靜,地理位置得天獨厚。基地共有6層樓,除了社區住戶共用的前院及通道,每戶皆擁有獨立後院和側院,以及地下室停車空間,建築物四面採光,建商以毛胚屋狀態交屋,讓居住者得以規劃符合自身需求的格局。此為三代同堂的居所,居住人數多達10人,空間規劃上如何滿足三代家人日常的親密互動,另一方面又可以保有個人的獨立思考空間,是設計的著眼點;由於家庭成員眾多,公共區域需達成眾人期待,私領域則需滿足各自需求,這些過程對設計團隊來說都是一種考驗。
樓層配置之想法
設計者在適當的樓層創造出開放空間,如何平衡居住者彼此的生活領域,遠比思考立面造型來的重要,設計團隊將「質感」擺在第一位,舉凡空間尺度的拿捏、動線的切割、家具的擺飾等,在在決定了居住者的行為模式與互動方式;材料的質感顯而易見,但生活的質感該如何被形塑與安排,更是設計團隊關注的部分,他們希望藉由設計,讓居住者真切感受到生活的愉悅。
除了1樓的主要公共空間(客廳、餐廳及廚房)外,其餘樓層皆有不同的機能,2樓全區為主臥室,3樓有兩間套房式臥室,4樓亦設有兩間臥室,並利用寬度充足的走道及樓梯下方規劃可駐足的吧檯和臥榻區,讓多樓層的垂直空間除了私密的私領域外,適時出現可共同使用的場域,藉此保持生活的互動關係,設計師認為,這開放緩衝的空間對家庭團體生活來說有其必要及重要性,讓人與人之間的關係既緊密又獨立。
4到5樓的樓梯原先配置於半戶外,不便於使用,設計團隊思索如何創造一支有雕塑感又具趣味的樓梯,遂修改局部梯的踏階和牆面位置,藉由金屬圓管鍍鈦的樓梯扶手和天井格柵的光影,營造出韻律感,樓梯面材則為刷石子,明快的處理多面銜接及複雜線條;進入5樓則為孩童們的共用書房,長桌可一同學習,有鑑於頂樓高度足夠,設計師便利用優勢,打造斜屋頂造型,控制天光進入,再利用金屬格柵切割光線,使光影在內部不斷移動及變化,豐厚空間表情,也讓此處成為屋主一家人最喜愛的地方。
材質應用之考量
設計師表示,因1樓為接待客人的主要場域,設計密度較其他樓層高,材質運用也更多元,鍍鈦金屬、牛皮表板、天花板鋼烤做出半反射效果,石材地面增添銅條分割,隱約反映周圍環境,讓客廳的體感更為寬闊,並以白色作為背景,為住家注入輕鬆調性,突顯家具軟件的多彩;餐廚區以玻璃夾紗的拉門區隔,隱約穿透的特性讓視覺得以延伸,亦可將後院的景觀借景入室,帶來層次感;而臥室則力求寧靜舒適,材質與造型都不宜太過繁複,軟裝反而成為空間的重點,甚至連床單選擇也是設計工作的一環,構築出舒適協調的氛圍。
視聽室因位於地下室,側面雖有通風天井,但採光較為薄弱,設計核心在於破除地下室的沉悶,故於天井種植耐陰的植生牆,並在另一面利用夾紗玻璃、人造竹及人造光源,企圖塑造輕盈的感受。設計團隊著重於探討生活場域的劃分,在公私領域上平衡佈局,使家人之間保有相聚的歡愉,以及屬於個人的靜謐時光。
採訪」陳映蓁