Interior 327

「湖泊下閱讀」一案,身兼前後期售樓處與社區文化中心的角色。1樓作為接待品茗區,以玻璃茶亭揭開空間序曲。

通往地下空間的階梯。透過這段昏暗無飾的廊道,沉澱日常雜序,讓心緒回歸本質。

沿著階梯向下,首先映入眼簾的即為半露天庭院與高聳大樹,設計團隊企圖重現五、六0年代,大夥於樹下話家常的場景。

為營造樸實的設計調性,選材方面多以實木、石材為主,且考量到本案主要活動範圍位於地景之下,為忠實反映出自然光線的流動,遂以淺色調鋪陳。

環形天井可引進陽光與水源,抬頭可見周圍穿透屋頂的上層湖水,日光樹影溫柔蕩漾。

於角落設有階梯教室,提供靜下心閱讀的場域;牆上畫作比例線條雖然現代,卻蘊含著中國傳統暈染畫的語彙。

自然採光從上方天井灑入室內,豐厚畫面張力。

軟裝也是氛圍營造重要的一環,例如圖中的座椅,李智翔揉合東西方設計元素,宋代家具輪廓與皮革結合,創造中西合併的意趣。

水吧區。利用藥劑染色後再打磨的手染銅櫃體,收納著機能性物件如冰箱等。

通往後方空間的過道。高度約五米的基地,本身即具備良好的尺度和氣度。

1樓平面圖。

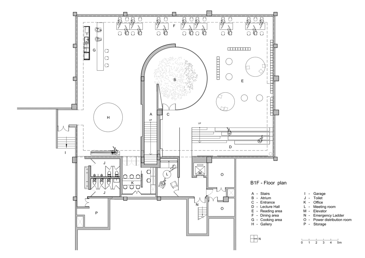
地下空間平面圖。
在俗世裡尋見璞真寧靜、和諧無擾的清靜之所,無論什麼時代皆讓人心嚮往之,這種豁然開朗的感受是李智翔設計師在構建「湖泊下閱讀」一案的設計靈光。本案有兩個別於傳統售樓處的前提,其一為此售樓處建築日後將轉供社區居民永續使用;其二,兩層樓空間除接待入口外,大部分使用面積位於地景下,如何維持與外隔絕的場域既有的獨立特點,又能使室內外環境充分對話,是水相設計的首要課題。
空間主軸的設定
有鑑於建築在前後期所扮演的功能不同,水相設計於規劃時,需設定好未來社區的應用藍圖,避免建物發生二次拆改的情形。設計團隊挖掘基地所在地-廈門的文化脈絡,作為建構空間的主要邏輯與故事發展,由於廈門是個茶文化盛行的城市,飲茶為居民極為普遍的生活習慣,甚至有「寧可百日無肉,不可一日無茶」的俗語流傳,可見居民對茶有著深厚的依賴性。李智翔便從此方向切入,期望回歸老廈門的茶文化精神;另外,也企圖重現五0至六0年代的生活場景:過往村鎮生活總以老樹為集會核心,鏈結人們交換日常資訊與情感,生活大小事向樹下靠攏是習慣,也是一種集體記憶,設計團隊遂於基地中心點種植一棵大樹,希冀由此延伸出許多記憶中的行為。藉由擷取屬於廈門的茶文化符碼,再融合五、六0年代的生活模式,重現質樸又寧靜的設計調性。
前述所提大部分使用面積位於地景之下,在1樓的景觀設定上,便將水池以湖泊的意象呈現,並於四周開鑿天井,以利將光線引入地下空間,1樓則摒棄傳統制式化櫃檯,改以被湖泊環繞的玻璃茶亭拉開序幕,外在川流的喧囂對應內部不疾不徐的靜謐,沉澱造訪者的心境,茶亭中央橫過一道流水長桌穿透玻璃帷幕,水流潺潺流入室外湖泊中,茶香佐天光,帶來滿室清新韻味。
茶席旁設有通往湖泊下方洞穴的階梯,看似昏暗隱晦,實則於弧形廊道佐以材料與光影,引領造訪者前進,李智翔表示,團隊刻意不以僵化的標誌塑造動線,而是藉由1樓景觀天井,使光線漫入廊道,而人則會不知不覺地朝著光前進,悠然踏入隱身湖底、氣氛截然不同的地下空間;廊道的圓弧型態則是透過曲面控制光線滲透的角度,營造柔和曖昧卻具想像力的氛圍,彷若行走於一條時空隧道般,走向記憶中,庭院的老樹底下。
透過細節構建底蘊
地下室因著環形天井引入採光,加上基地原有高度近五米,尺度拉高後自然也提升了氣度,身處其中不會讓人覺得有壓迫感,無論是隨風搖曳的樹影、觀雨、艷陽高照,都是最獨一無二的天然背景;水相設計團隊佈置了階梯角落,希冀讓造訪者散落於四周,襯著天光靜下心閱讀,或是於中央的社區茶文化體驗空間,交流彼此情感。李智翔解釋道,由於本案日後將轉作社區文化中心,他不硬性劃分機能佈局,改利用軟裝的安排,強化空間的運用彈性,整體設計調性採樸質路線,內部常見實木、石材、銅質等元素,在在強調視覺與觸覺的古拙典雅,並佐以含蓄的光影,精準地表現出茶道「和敬清寂」的意境,也滿足了設計團隊希望賦予空間的寧靜感。
針對軟裝部分的考量,李智翔表示,他以水相設計一向擅長的手法,將同個年代的東西方文化元素交融,例如座椅外觀偏向中國宋代家具的輪廓,但材料則選擇西方常用的皮革、木質等,讓環境整體並非全然的中式導向,而是融合了中西方精髓,並回歸溫潤、純粹的質地,以期創造一個沒有過多矯情造作框架的空間,而是使人回到嚮往的舊時生活,那樣圍繞著大樹閒話家常的凝聚力。
採訪」陳映蓁