Interior 352

利用智能玻璃劃分區域,讓視線穿透於空間中,隨時轉換公私領域。

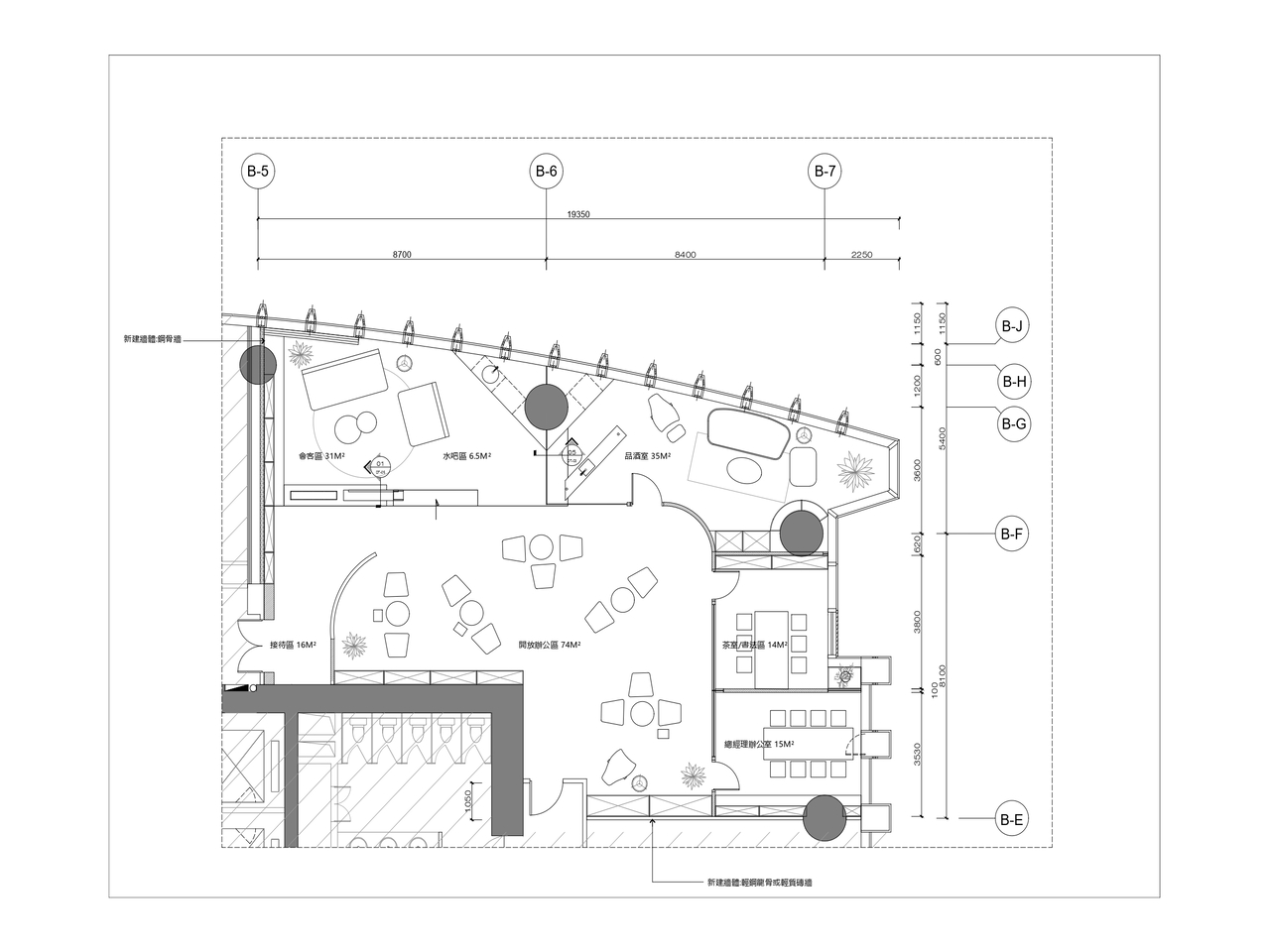
整體格局呈現L型,取自品牌英文名(Lion)首字母。

周圍以玻璃帷幕而成,使空間通透明亮。

利用圓柱和高低差天花作場域劃分,並透過L型水吧連接兩區。

品酒室多處使用弧型柔化直角結構,打造充滿韻致的休閒場所。

將藍綠品牌色,點綴於L型空間中,像是水吧台和門框。

開放式辦公區打破傳統的固定座位形式,並適 當留白給予彈性變化。

平面圖。
《西域辦公室》位於北京商業中心的辦公大樓之中,由於此區新都更計畫及舊屋維護,不僅保障未來生活機能,更能長期飽覽四周景色。設計師期望構築舒適且兼具生活感的工作場所,並指出「工作是從生活維度中延伸出來的場域,從回歸本質出發,為辦公空間訂製一個更悠然、從容的生活架構。」
由於周圍以玻璃帷幕而成,當陽光灑入室內時,寬敞明亮及穿透的視野,不僅令人輕鬆將美景盡收眼底,亦讓思緒肆意穿梭,增加工作效率,提供愜意的辦公環境。業主從事供應鏈管理,需時常與客戶交流,全作以「社交」作為主要需求,為滿足此條件,設計師捨棄實體隔牆,打開場域視野,靈活規劃區域關係。
呼應品牌的L 型空間
從玄關步入室內,設計師首先利用玻璃磚弧牆,細節劃分區域,當從側邊望向內部時,可隱約看見寬敞的開放辦公區;左側是會客室與品酒室,右側是書法茶室、會議室及主管辦公室,整體格局呈現L型,呼應公司標誌的(Lion)英文首字母,同時宣傳品牌形象。
另外,藉由不對稱的天地結構,構築整體框架,將會客室地坪架高,以高低層次突顯場域感,亦增添空間趣味性;設計師利用開放式天花及局部裸露的管線,增高視覺感受,並局部設置封頂天花,延展場域間的連續性。
會客室和品酒室以圓柱做二區分界,並規劃L 型水吧區作為中繼轉換,串連兩區域,亦弱化圓柱的沉重視感,賦予整體比例的協調性;由於會客室和品酒室以接待客人為主要功能,所以特別規劃智能玻璃,不僅讓視線通透,給予客戶安全感,同時可根據需求使用霧化玻璃,給予隱密的包覆感,隨時轉換公私場景。
設計師多處採用弧型設計,不僅弱化原建築中過多的直角,更增添了光影的豐富變化,同時設置薄紗窗簾作部分遮擋,顯其採光優勢。另一方面,在燈具挑選上,白天輕柔的間接照明與自然光影相互配合,夜晚設置重點照明保障整體亮度;透過日與夜的互相搭配,均勻光線分布,勾勒其溫暖細膩的層次感。
沉於色彩 穩於質感
在越發重視「平衡生活與工作(Work-Life Balance)」的世代,設計師根據業主工作需求,以「生活與交流」貫穿全作,期望打造像「家」一般的舒適空間,不僅設置書法茶室、品酒室、書櫃等休閒體驗,更規劃開放辦公區,靈活運用場域機能,貫徹生活質感美學。整體環境以滿足生活品質為主軸,設計師於地面鋪設耐磨木地板,舒緩心境圍塑靜謐氛圍,會議室和茶室則利用水磨石磚,搭配藝術裝飾,襯托個人品味展現奢華質調。
此作主要以黑、灰作為色彩基調,配以白色軟件營造沉靜氛圍;同時將品牌藍綠色點綴於空間中,訴說企業精神,亦搭配具細節色彩的編織地毯,豐富空間表情,透過簡單雅致的語彙,打造休閒、工作兼具的恬適場景。
採訪」林靖諺