Interior 314

杭州單向空間書局坐落於中國杭州拱塑區遠洋樂堤港的一間百貨商場內,希望為它注入有別以往的書店風貌。

到了夜晚,書店內的燈光亮起,就像是一座會發光的書盒,迎來了另一種氛圍。

書店1樓帶入品牌代表色—黑色。

天花板使用擴張網提升空間質感。

1樓的階梯座位區。

2樓是書店的主要區域,入口利用金屬立板傳達「冊」的概念。

設計文具選品區,因採光相對其他空間較弱,所以建材選用明亮色調。

靠近落地窗的區域設置大量的閱讀座位。

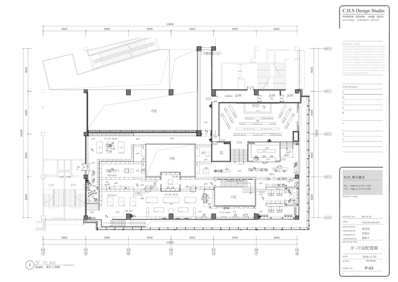
3樓是綜合的空間。

以藝術家創作的玻璃詩詞做裝飾。

書店內設有多座大理石階梯,串連3層樓的空間,也希望顧客能透過漫步多做停留。

1樓平面圖。

2樓平面圖。

3樓平面圖。
「單向街」意謂著只能往一個方向行駛、不得逆行的道路,德國哲學思想家華特‧班雅明的著作《單向街》就是單向空間名字的由來。杭州單向空間書局坐落於中國杭州拱塑區遠洋樂堤港的一間百貨商場內,首次離開北京進駐杭州,選擇了1200坪的廣大腹地,提供大量座位以及友善的閱讀環境,希望為它注入有別以往的書店風貌。杭州單向空間書局的原基地只有2層樓,而2樓挑高約12公尺的優良條件,讓設計師決定再規劃出一層樓做使用。
與自然對話的書盒
坊間大部分的書店都是在室內,被偌大的牆面包圍著,設計師初見基地外的綠意植栽,讓他決定使用落地窗引進自然光並帶入窗外景緻,希望跳脫固有牆面的侷限,帶給顧客閱讀時對大自然的偶然凝視。
早晨,太陽緩緩升起,柔和的陽光佈滿書店的角落,當下午陽光過於刺眼時,會放下自動捲簾,到了夜晚再將捲簾收起,書店內的燈光亮起,就像是一座會發光的書盒,迎來了另一種氛圍。
書店1樓為「單向空間」建立品牌形象,帶入品牌代表色—黑色,天花板使用擴張網提升空間質感,並設置工作坊,提供藝術家創作、展覽、授課等多元藝文活動,工作坊前方的書櫃利用半穿透式設計,讓書店裡外都能透視、保有互動。高聳的書牆設置在樓梯旁,擺放單向空間的代表書籍,傳達著品牌對於書的理念。
2樓是書店的主要區域,入口利用金屬立板傳達「冊」的概念;往內走會發現書櫃中設有燈光,書櫃亮、走道暗,並且利用書櫃的錯落營造層次感;設計文具選品區,因採光相對其他空間較弱,所以建材選用明亮色調;而靠近落地窗的區域則有設置大量的閱讀座位,從高腳桌、大型閱讀桌、咖啡卡座到單椅茶几提供顧客多元的選擇。
3樓是綜合空間,階梯式設計加上一棟棟小書屋,多了一點趣味、活潑感。將兒童區設置在3樓,不僅可以避免影響其他書區,也可以有更大的使用場地,書櫃高度以及指示牌角度,皆依據兒童身形做調整。
設計師將杭州的竹林之美帶入此層樓,運用多種竹編元素散佈空間,像是樓梯旁的格柵、收銀台的天花板,用一片片竹編延續「冊」的意象。階梯式地坪是設計師的巧思,希望客人可以或坐、或仰、或臥,在此欣賞窗外景色並且享受自我與書籍對話的寧靜時光。
單向空間希望這座書店可以凸顯企業影像媒體以及文字的力量,所以設計師在1、2樓空間設有大型LED拼接屏幕,2樓則以品牌產品「單向曆」的每日一句為靈感,以藝術家創作的玻璃詩詞做裝飾。而書店內設有多座大理石階梯,不僅串連3層樓的空間,也希望顧客能透過漫步多做停留,並利用書牆做空間的貫穿,引領客人前往另一座樓層探索。
採訪」歐陽青昀