Interior 355

電視牆後方的次臥,在天花板與隔柵門增設光源,改善無對外窗的缺點。

整體空間以木質為主調,其純粹單一的材質與色彩,予人簡約舒適之感。

電視牆設置花崗岩櫃體與次臥合併使用,釋出走道預留空間。

餐廳置入木質餐桌,並嵌入花崗石桌腳,延續客廳風格。

餐桌搭配圓形吊燈與編織木椅,展現典雅的寂靜氛圍。

主臥背牆以不對稱手法拼接組成,右側淺灰壁紙的沉穩襯托著左側暖木皮,表現新生的自然景 致。

主臥衣櫃拆除制式門片,不僅讓視線易於穿透,更滿足取用的便利性。

臥室延續線條語彙,從衣櫃延伸至床背串聯場域,滿足生活機能。

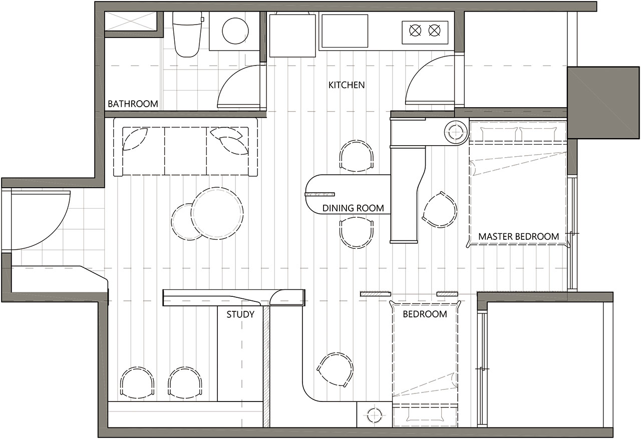
平面圖。
《凝光》是住宅演示個案,設計師不僅要思考生活機能,更要最大限度發揮其展示功能,除了規劃清晰的整體布局,同時也揭示出對未來生活的美好想像。
嫩芽新生 永續風景
空間以永續住宅作為概念,重視自然材質與光線穿透。推開大門,玄關一改過去設置固定櫃體的方式,置入開放式的古銅色金屬層架,以拓展人們的空間視野,提升屋內色彩層次。
步入客廳是繪有清水模塗料的電視牆,搭配線燈讓光線穿過斜角切面,產生多變光影豐富場域,電視牆下方則設置花崗岩機櫃,並與次臥櫃體合併運用,釋出走道寬度預留充足空間;客廳規劃無扶手的靠背黑沙發,象徵著日式席地而坐的傳統風格,並與背牆的玄色金屬飾條相呼應。餐廳中央設置一張木質餐桌,其沿用電視牆底座嵌入花崗岩桌角,延續公領域整體風格,同時融合木質的柔和與石材的堅毅質感,展現相輔相成的設計語彙,搭配簡約的編織木椅及上方圓頂吊燈,打造寂靜素雅的居家場所。
隨著木質語彙步入主臥,設計師特別在床背以不對稱手法,將異材質拼接組合,其中右側三片淺灰壁紙呈現舒適沉穩的氛圍,左側兩片暖色木皮則在淺灰壁紙的襯托下,展現大自然中嫩芽初生的盎然生機,在燈光的照映下亦成為空間亮點,旁側櫃體則以展示取代封閉,同時增加收納空間與取用的便利性。藉由妥善運用實木皮、花崗岩等天然建材,展現其經典永恆的特性,喻意仰慕自然。
位於電視牆後方的次臥,為改善採光不足,在天花板增設線燈,並在隔柵門中裝設LED 燈作為空間亮點,吸引人們的目光;一牆之隔的另間臥室,延續格柵的線條語彙,將衣櫃的木質背牆延伸至床背,並設置同質抽屜櫃,結合圓鏡做梳妝台使用,除了串連場域所有機能,同時透過鏡子的反射,讓視線貫穿整體空間,予人開闊之感。
現代經典中的日式侘寂
全室以溫潤的木質調為主軸,利用大量的實木皮,搭配沉穩石材及清水模塗料,層層鋪展於空間,並裝飾俐落的金屬飾條及線型光源,增加空間的層次感,體會現代設計與日式侘寂的交會,另外採用輕透玻璃取代實體隔間牆,放大場域視野,提供使用彈性且張力十足的開闊效果;細節上,設計師特別以木皮包裹天花板橫樑,柔化量體帶來的壓迫感,塑造舒暢的高挑視野。
全作以一致性的色彩及材質層疊於整體空間,打造靜雅的侘寂光景,並透過線形燈光和金屬細節展現現代設計,為靜謐的質感場域,增添內斂的時尚元素,簡單的語彙以及線燈、切面造型,亦予人豐富而簡約的氛圍
感受。
採訪」林靖諺