Interior 356

有鑑於建物樓高較高,天花板造型以雙色及雕塑手法向上延伸,強化設計感,亦突顯挑高優勢。

玄關作為轉換心境的過渡空間,刻意深沉調性。

避免以實牆阻隔公區的開敞,遂透過材質、色調等細節無形劃分場域。

電視牆與玄關選用同片石材,讓視覺得以串連;設備櫃的透氣布料和格柵則有助於電器散熱。

家具軟件的大器型態與空間調性十分吻合。

長型基地的平面配置圍繞著開放式中島做放射狀布局,並藉由黑玻、鏡面等語彙保持空間的通透感。

廊道為本作的中心軸線,客廳、書房及臥室皆鋪設海島型木地板,與餐廚區產生分界。

鋼琴正對著廊道,成為獨一無二的端景。設計團隊於臥室門片加裝隔音條,以降低干擾。

一家人皆有閱讀、收藏藏品的習慣,展示櫃加裝燈條營塑藝廊的精緻感。

簡化繁複的設計元素,打造能夠完全放鬆的臥室環境。衣櫃的滑門與玻璃輕盈了量體。

主臥室主牆以皮革為表材,仿古銅立柱及雲石壁燈圍塑出床鋪範圍。

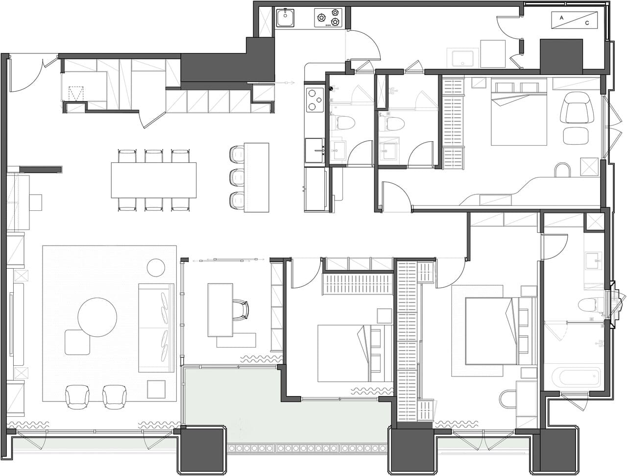
平面圖。
《睿格》背後有著一段浪漫的故事。YHS DESIGN團隊提到,本案是男主人送給女主人的禮物,整體規劃上皆以女主人喜好的溫雅內斂風格作為初步設計方向,也由於基地坐落於台北市中心,周邊交通便利,窗景視野良好,周遭無過多建築遮蔽物,可眺望市景和遠處山頭,傍晚時分更可將落日之景納入眼簾。
無形卻明確的場域劃分
作為一家三口的居所,設計師以閒適的退休生活、聚會為出發點,進行空間擘劃,公共區域利用開放式手法呈現,滿足熱情好客的業主們的日常需求,而私領域則刻意安排在基地的最內側,盡量弱化外在因素容易造成的干擾;另一方面,衛廁部分也強調「主客區分」,臥室皆為套房式設計,外區的廁間則保留給賓客使用,讓親友相聚和居家隱私兩面向能取得良好的平衡。
如前述所提,設計師從女主人喜愛的優雅調性中提煉空間質感,整體以溫潤簡約為主要方向,透過單純的材料、簡單的語彙突顯建築原有的優勢,形塑一處能感受美好生活的堅固堡壘,凝聚業主一家的家庭向心力。
有鑑於此,YHS DESIGN團隊以清淺柔和的色調替空間打底,藉此整合家具、軟裝等物件,使視覺效果豐富而不紊亂;客廳主牆及玄關採用同一片石材,有助於提升室內的延伸感,主牆左右對稱式的設備櫃則搭配上透氣布料和金屬格柵,讓電器得以散熱;客廳及書房則依序依循開窗面布局,採用玻璃、金屬等材料作為界定,放大窗景特色,同時塑造通透延續之體感,而活動式拉門的運用則保有隱私或開放場景的變換彈性。
選材強調空間一致性
設計師進一步分享,為顧及住宅的開闊性,他們以居者的行為模式去劃分空間界線,公區盡量避免使用實體隔間牆,改以具穿透性的元素(如玻璃、鏡面等)鋪陳,重視採光與視線的串連,而地坪的相異材質不僅於無形之間強化了場域分界,也藉由平面與立面的材料框出區域性,例如餐廚空間使用米色大理石地磚,配搭上同色系的設備櫃,描繪出協調的一致性;另一方面,長型基地以中島廚房為核心,並做放射狀布局,廊道則被視為本作的中心軸線,而一路延伸進臥房的海島型木地板則扮演連繫公私領域的角色,散發溫暖宜人的氣息。
而臥室作為極度私密的休憩空間,設計師期待業主進入時能感受到全然的放鬆,因此簡化所有設計手法,恪守「形隨機能」的原則,不過度鋪張,以淨色構築畫面。主臥主牆以皮革為表材,整面延伸隱蔽廁所入口,亦整合了化妝桌,而床頭的仿古銅立柱及雲石壁燈增添了精緻質感;廁所備品櫃以木格柵與橘色暈光營造度假飯店的 安適氛圍,地板及檯面則選用大理石,並分別以消光和亮面手法處理,止滑又易於維護。
以軟裝勾勒淡雅之感
設計師表示,由於一家人均有閱讀及收藏藏品的習慣,故特別在廊道上設置展示層櫃,燈帶的運用賦予家中宛如藝廊般的精緻質感;另一方面,針對人造光源的配置,則需兼顧布光的全面性,從天花板的投射燈、間接照明、窗簾盒氣氛燈,以及走道兩側的夜路系統,皆可依亮度需求自行調整控制,讓宅邸更貼近居住者。而家具軟件的選擇上,則延續空間的灰色調性,深色的腳座框架提點出單品的獨特線條,使室內更顯沉穩大器,在簡約俐落之間融入輕奢感受,打造這座雋永內斂的生活堡壘。
採訪」陳映蓁