Interior 358

外立面的材料與色彩,創造能吸引目光,但又不會過於搶眼的設計。

通往入口的樓梯,重新規劃了扶手、金屬浪板的天花板與燈光。

接待櫃檯,重新包覆檯面,並搭配線型燈帶營造視覺焦點。

將LVT地板材拆解為片材後,衍伸出樹的意象。

四周佈置樣品的展示與收納,依照板材的色彩與紋路劃分。

洽談區,放大展示桌的尺度,提供設計師與消費者舒適又自在的洽談體驗。

利用地毯製成畫作的端景。

山水地毯鋪蓋成的過道空間。

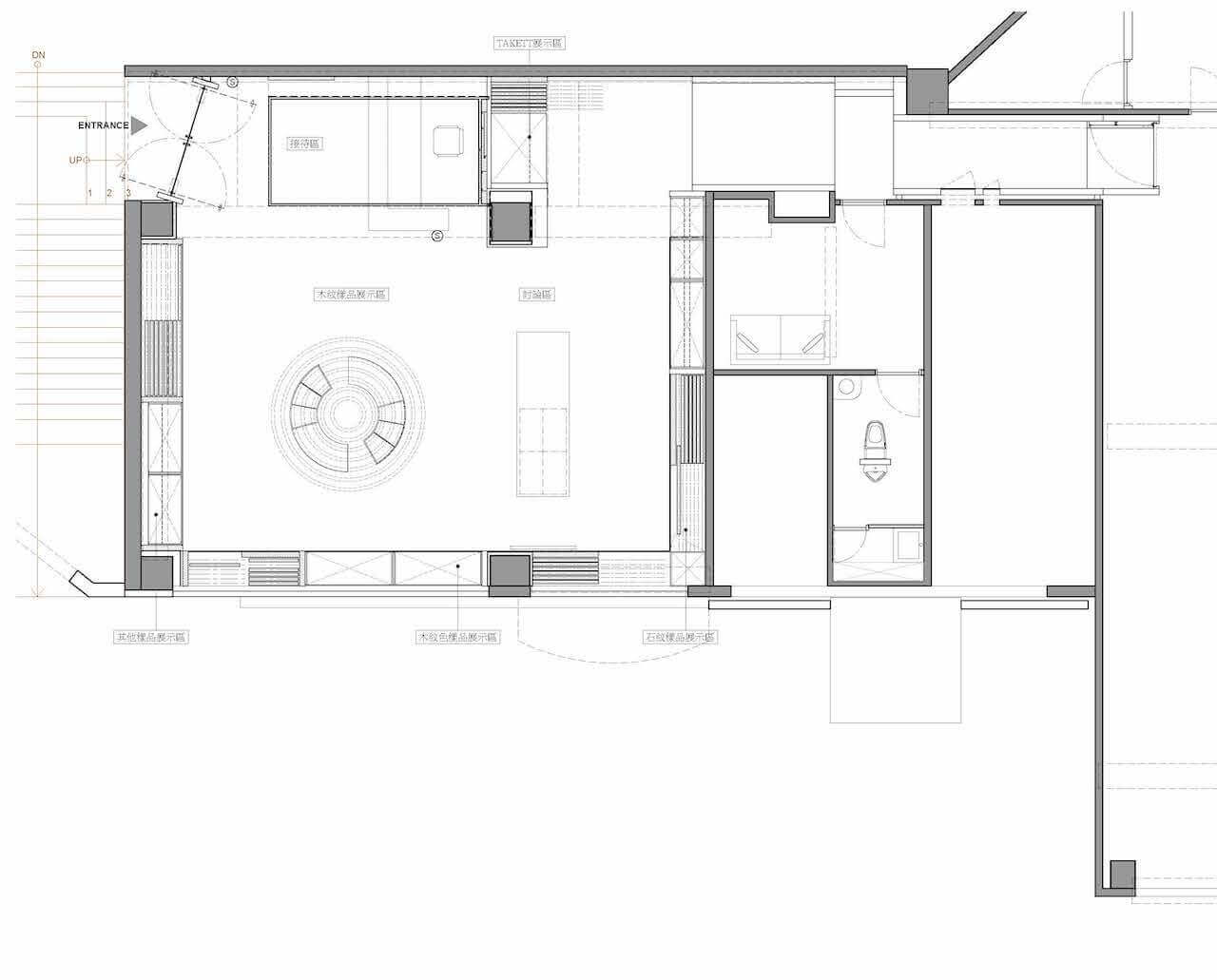
平面圖。
群群地毯是以商業空間、飯店等地毯鋪設工程規劃與服務為主的在地品牌,在數十年前,展示空間尚未普遍的年代,業主即投入資金打造了這間地毯展廳,她希望透過展廳的完整陳列,能讓設計師、業主看到實品,在一個舒適又安靜的空間裡,好好坐下來溝通,如何把地毯做到最好!
展示廳作為品牌的形象與門面,選址在繁華的台北市中心,且是人流與車流都十分龐大的交叉路口;然而隨著時間的流逝,空間風格除了不符合現代潮流,建築也出現了漏水與材料老化等問題,加上近年業主引進的產品種類增加,也需要新的展示空間,所以找來呈境設計為展示廳重新設計規劃。
讓材料不只是材料
袁世賢設計師說道,此次的設計是希望為LVT地板材規劃展示空間,如何跳脫傳統材料的表現手法,讓「材料不只是材料」是他此次設計的核心主軸。
雖然群群地毯的展廳有上百坪,但在諸多考量之下,決定先以外立面與前半部的空間為主。在有限的空間裡,如何讓室內顯得不侷促、讓參觀與洽談動線更為流暢,同時滿足產品的展示與收納,設計團隊提出了「圓」的概念;以無方向性的「圓」,顛覆一般展示空間依照機能以四方形劃分區塊的手法,帶出流暢、迴旋與不斷循環的參觀體驗。
除了以圓為發想,設計團隊希望能有非材料性質的表現,所以將LVT地板材拆解為片材後,衍伸出樹的意象。藉由設計轉化,將板材分割重組,沿著圓形的木作展台向上一圈圈環繞懸掛,讓原本運用在地面的板材,成為在空中恣意生長的樹葉,搭配燈光的妝點,讓這棵大樹化為空間中的焦點;同時呼應生命體的有機概念,每一片板材都可以隨業主的使用需求任意更換,增添場域與使用者之間的連結與互動。
展示桌的後方規劃洽談區,設計團隊盡可能放大展示桌的尺度,提供設計師與消費者舒適又自在的洽談體驗;而後方立面的材料板不單作為壁面裝飾,而是希望透過不同材料的混搭與拼接,增添洽談時對於材料應用的想像。展廳的四周則佈置了樣品的展示與收納,依照板材的色彩與紋路劃分成單色、木紋、石紋與其他等。並且為了讓新、舊空間能更好的串連,設計團隊藉由材料的變化引領消費者的動線;隨著向後方的地毯展示區移動,地面從原本的LVT地板材轉換為方塊地毯,端景利用色彩與紋理強烈的地毯製成畫作,呼應由山水地毯鋪蓋成的過道空間。
嶄新門面 點亮視覺
為了營造質感、呼應品牌內斂低調的精神,同時與周圍的環境、建築和諧共存,設計團隊簡單化外立面的材料與色彩,創造能吸引目光,但又不會過於搶眼的設計。選用金屬鋁板作為主要建材,藉由網狀、直、橫紋理,與格柵之間的疏密變化豐富語彙;色彩則選用沈穩的深咖啡色為底,搭配品牌色跳色處理。通往入口的樓梯,則重新規劃了扶手、金屬浪板的天花板與燈光,鞏固安全之餘,也讓原本較為幽暗的走道,在金屬與光的反射下變得更為明亮。
袁世賢設計師說道,此次的設計對他來說並不是材料展示,而是一場藝術創作;讓地板材除了運用在地面,還化身為藝術材料裝飾在空間之中,讓「材料不只是材料」,讓展示空間的參觀體驗成為一場美學饗宴。
採訪」歐陽青昀